Нашей командой реализовано уже более 1000 проектов гардеробных.
+7 (495) 640 40 18
Мы пришли к выводу, что наиболее эффективный
первый шаг к правильной гардеробной
- это начать работу с дизайнером-конструктором.
Посмотрите короткое видео о том, чем дизайнер-конструктор
отличается от обычного замерщика и дизайнера.
Наши дизайнеры-конструкторы имеют опыт от 7 до 15 лет
в проектировании корпусной мебели.
Вызвав дизайнера-конструктора, Вы получаете:
Точный замер помещения
с учетом всех особенностей (ниши, проемы, перепады высот, “развернутые” стены, галтели, плинтусы, элеткро-щитки, розетки, выключатели и т.д.)
Точный расчет стоимости
в нескольких ценовых категориях и/или комплектациях.
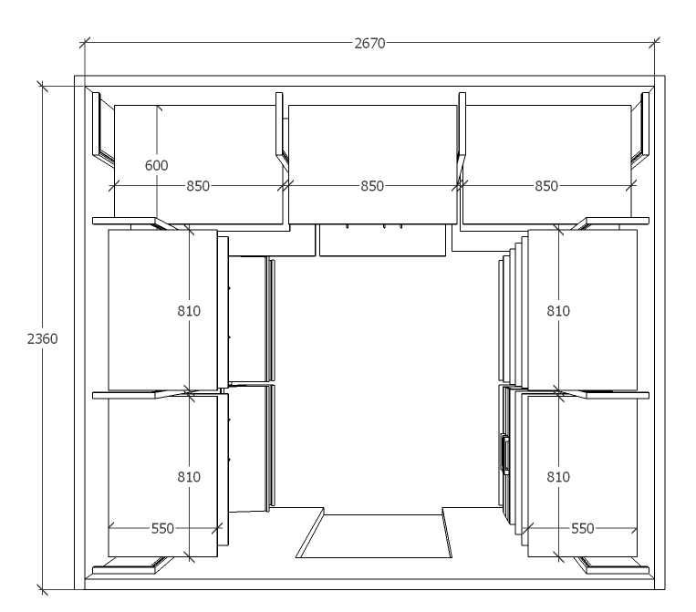
Трехмерный проект гардеробной
с указанием всех размеров, материалов и фурнитуры. Также там будут указаны все важные нюансы (подпилы по месту, фальшпанели, размер и место установки сейфа и т.д.)
Согласованный список
материалов и фурнитуры, из которых будет изготовлена мебель (дизайнер-замерщик привезет с собой образцы)
Анна Буланова
старший менеджер-дизайнер мебельной фабрики MATRIX

Выезд дизайнера-конструктора стоит у нас 1200 руб. Выезд за МКАД оплачивается дополнительно из расчета 50 руб./км. Всё остальное (замер, проектирование, согласование материалов, расчет стоимости) мы делаем бесплатно.

Для тех, кто привык быстро принимать решение, мы предлагаем скидку на выезд дизайнера-конструктора 50%. Т.е. стоимость выезда будет стоить 600 руб. Это предложение действует в течение 30 минут.

Осталось: